Specification
New VRF A/C
Carpet to first floor

Rear loading doors
LED lighting
12 parking spaces

Fully electric
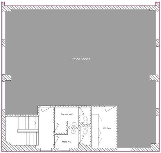
The first and ground floors at Beechwood, provide high quality office and warehouse accommodation.
| SQ FT | SQ M | |
|---|---|---|
| First Floor | 2,871 | 267 |